2.3.2 Instalacións de fontanaría e saneamento
Instalación de fontanaría
A auga de consumo chega ás vivendas a través das redes de distribución procedentes das estacións potabilizadoras nas que recibe un tratamento que a fai apta para o consumo humano e industrial.
|
|
| Instalación de tratamento de auga potable |
A acometida realízase desde a arqueta de rexistro na que está situada a chave de paso xeral do edificio. Cando se trata de edificios con máis dunha vivenda pasa ao cuarto de contadores, despois dos cales se coloca unha válvula de retención para evitar o posible retroceso da auga. De aquí saen os montantes ou columnas de subida que levan a auga a cada vivenda, dividíndose dentro en dúas ramas, unha para a auga fría e outra para a auga quente. Os materiais máis utilizados na actualidade nestas conducións son o polietileno reticulado e o polipropileno, aínda que tamén se utilizan o cobre e o aceiro.
|
|
| Esquema da instalación de fontanaría dun edificio |
O sistema de produción de auga quente pode ser por caldeiras a gas natural, butano, propano, gasóleo, por acumuladores eléctricos ou por paneis solares. Estes últimos adoitan ser complementarios doutros sistemas de produción de auga quente.
De acordo coas normas do hábitat galego, nos edificios de nova construción é obrigatoria a instalación dalgún sistema de produción de auga quente baseado en enerxías alternativas. O sistema máis utilizado na actualidade é o de enerxía solar térmica que concentran a enerxía dos raios solares grazas a uns paneis chamados colectores que funcionan mediante o efecto invernadoiro e que adoitan estar instalados na cuberta dos edificios. A auga quente producida almacénase nun depósito acumulador para a súa distribución posterior a través do circuíto de auga quente. Cando a radiación solar non é suficiente para quentar a auga demandada na vivenda, entra en funcionamento o equipo xerador auxiliar: caldeira eléctrica, a gas, a gasóleo, etc.
A produción de auga quente mediante enerxía solar térmica tamén serve para alimentar circuítos de calefacción, piscinas climatizadas, etc.
|
|
|
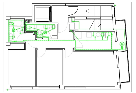
Como en todas as instalacións, para simplificar a súa interpretacion e debuxo nos proxectos de construción, os elementos dos circuítos de fontanaría e de saneamento represéntanse mediante símbolos.
|
|
|
| Lenda de fontanaría | Lenda de saneamento |
|
|
| Esquema das instalacións de fontanaría e saneamento dunha vivenda |
Instalación de saneamento
As augas residuais procedentes da cocina, da lavadora e dos aparellos sanitarios da vivenda son evacuadas ao exterior ata a rede pública de sumidoiros por medio da instalación de saneamento.
As redes de sumidoiros poden ser unitarias ou separativas. Nas primeiras existe unha soa rede de colectores na que se recollen e mesturan as augas fecais procedentes das vivendas coas augas de chuvia recollidas polos sumidoiros existentes nas rúas, facilitando así a limpeza dos colectores. Nas segundas estas augas non se mesturan, o que posibilita a recollida e reutilización das augas de chuvia. En ambos os casos os colectores dispoñen de pozos de rexistro para acceder a eles e facilitar a súa limpeza.
O material máis utilizado nas tubaxes de desaugamento dos aparellos sanitarios, vertedoiros e lavadoiros é o PVC.
Os desaugadoiros dos vertedoiros e dos lavadoiros dispoñen, entre a saída e a conexión coa baixante, dun sifón ou curvatura de 180º que está sempre cheo de auga para evitar a entrada de gases e cheiros procedentes dos sumidoiros. As bañeiras, as duchas e a maioría dos lavabos e bidés non dispoñen de sifón, polo que os seus desaugadoiros se xuntan nun bote sifónico que funciona como un sifón común para todos estes aparellos. Finalmente, unha tubaxe conecta a saída do bote sifónico coa do inodoro, xuntando todas as augas e conducíndoas ata a columna de descarga ou baixante ata os colectores do edificio, aos que se unen mediante arquetas ou unións practicables para facilitar a súa limpeza.
|
|
|
|
| Sifón na saída dun vertedoiro | Bote sifónico | Arqueta |
-
Esquema de instalación de saneamento dun edificio
Segundo as normas do hábitat galego, todo edificio de vivendas de nova construción en Galicia debe contar cun sistema de recollida, almacenaxe e depuración das augas de chuvia e das augas grises procedentes dos lavabos e as duchas, para a súa posterior reutilización doméstica.
Esta auga, logo de decantada e filtrada, pódese usar tanto para encher as cisternas dos inodoros como para as lavadoras e para a rega de xardíns. Este sistema, que permite aforrar sobre un 50 % do consumo familiar de auga, xa está a ser utilizado en países como Alemaña ou Suíza e en zonas do Levante español, e nas illas Baleares.
Actividade resolta
Repare no esquema da instalación de saneamento e vexamos cales son os seus elementos.
-
-
Onde se xuntan as augas das bañeiras, lavabos e bidés coas dos inodoros?
Xúntanse na columna de descarga ou baixante que as conduce ata o colector.
-
As augas procedentes das cociñas e lavadoras utilizan a mesma columna de descarga (baixante) que as dos baños?
Xeralmente estas augas utilizan baixantes independentes.
-
Que pezas se utilizan para unir as baixantes co colector horizontal?
As arquetas.
-
Cal é o último elemento practicable da instalación antes de que as augas residuais saian do edificio? Para que serve?
O último elemento é unha arqueta ou pozo de rexistro que é practicable para permitir a limpeza das tubaxes.
-
Actividades propostas
S24. Consulte o recibo de auga reproducido seguidamente e responda ás seguintes cuestións sobre el:

-
- Cal é a cota de dispoñibilidade para pagar aínda que non exista consumo de auga?
- Cal é o prezo do m3 de auga?
- Que outros conceptos se facturan no recibo, ademais da auga e o IVE?
S25. Observe o plano do esquema da instalación de fontanaría e saneamento dunha vivenda e, consultando a táboa de símbolos, localice no plano os seguintes elementos:
-
- Chave de paso xeral á entrada da vivenda.
- Tomas de auga fría na cociña.
- Caldeira.
- Botes sifónicos.
- Baixantes de PVC.
S26. Indique as vantaxes e inconvenientes dos seguintes sistemas:
-
- Produción de auga quente mediante paneis solares térmicos.
- Recollida e reutilización da auga de chuvia e dos lavabos e as duchas.
Licenciado baixo a Licenza Creative Commons Recoñecemento Non-comercial Compartir igual 3.0







