Saltar navegación

4. Deseñando o espazo: CAD 2D

Recordas como se traballa con escalas?

A escala é a relación entre as dimensións dun obxecto real (como un edificio ou un cuarto) e as do seu debuxo ou maqueta. Como os edificios son demasiado grandes para representalos a tamaño real nun papel, en arquitectura úsanse escalas de redución, que nos permiten debuxar edificios ou rúas mantendo as proporcións exactas pero a un tamaño máis pequeno e manexábel.

A escala sempre se indica de forma clara no título do plano ou ao pé do debuxo. Escríbese así:

Escala: 1:100  ou E = 1/100

Tamén se pode empregar unha escala gráfica, que é unha barra debuxada que permite medir directamente no plano sen calcular.

Se un plano está a escala 1:100, significa que 1 cm no debuxo equivale a 100 cm (1 metro) na realidade. É dicir, todo está reducido 100 veces.

Tipos de escala máis usuais

  • 1:500 ou 1:1000 → para representar conxuntos urbanos ou parcelas grandes.
  • 1:100 ou 1:50 → para debuxos xerais de edificios ou planos de planta.
  • 1:20 ou 1:10 → para detalles construtivos ou elementos interiores.
  • 1:1 → representa obxectos a tamaño real (por exemplo, unha peza pequena ou un detalle de carpintaría).

Calcula ti!

Pregunta 1

Nun plano a escala 1:100, a fachada dunha casa mide 7 cm. Canto mide na realidade?

0,7 metros
70 metros
7 metros
17 metros

Pregunta 2

A escala 1:50, unha porta mide 1,8 cm no plano. Canto mide na realidade?

90 cm
90 cm (0,9 m)
1,8 m
180 cm

Pregunta 3

A escala 1:200, un dormitorio mide 4 cm no plano. Canto mide na realidade?

40 metros
2 metros
8 metros
0,8 metros

Pregunta 4

A escala 1:20, unha xanela mide 3,5 cm no plano. Canto mide na realidade?

3,5 metros
70 cm
1,75 metros
7 metros

Pregunta 5

A escala 1:25, unha mesa mide 2 cm no plano. Canto mide na realidade?

25 cm
50 cm
75 cm
1 metro

Pregunta 6

Unha fachada mide 10 metros na realidade. Se se debuxa a escala 1:100, canto mide no plano?

Selecciona a opción correcta:

10 cm
100 cm
1 metro
5 cm

Pregunta 7

Un corredor mide 4 metros na realidade. A escala do plano é 1:50. Canto mide no plano?

8 cm
8 cm (4 × 100 ÷ 50 = 8)
40 cm
0,4 cm

Pregunta 8

Unha mesa mide 1 metro de longo na realidade. Se a escala do plano é 1:20, canto mide no plano?

5 cm
20 cm
50 cm
2 cm

Pregunta 9

Un salón mide 6 metros de longo. Se o plano está feito a escala 1:75, canto debe medir ese salón no plano?

9 cm
6 cm
2 cm
8 cm

Pregunta 10

Un edificio mide 15 metros e no plano está representado con 15 cm. Cal é a escala empregada?

1:1
1:100
1:10
1:150

Pregunta 11

Un cuarto mide 5 metros de longo e deséxase representar cun debuxo de 10 cm. Que escala se está empregando?

1:25
1:50
1:5
1:20

Pregunta 12

Un corredor mide 2 metros. No plano debúxase con 4 cm. Cal é a escala?

1:100
1:25
1:50
1:20

Pregunta 13

Unha xanela mide 1 metro na realidade. Se a maqueta representa esa xanela cun tamaño de 2 cm, cal é a escala?

1:25
1:50
1:20
1:5

Pregunta 14

Un edificio mide 18 metros e no plano mide 9 cm. Cal é a escala do plano?

1:20
1:100
1:200
1:50

CAD en arquitectura

Como xa vimos, o CAD (do inglés Computer-Aided Design, ou Deseño Asistido por Computador) é un conxunto de tecnoloxías e ferramentas que permiten deseñar, modelar e representar obxectos, espazos ou estruturas mediante programas informáticos. É amplamente utilizado en arquitectura, enxeñaría, deseño industrial, moda, e moitos outros campos.

A ferramenta máis usual en CAD 2D na arquitectura é o AutoCAD pero existen outras.

Un plano arquitectónico contén todas as especificacións de construción dunha casa: dimensións, materiais de construcción, métodos de instalación, técnicas, etc. Hai tantos detalles para introducir que normalmente redúcese a información a un conxunto de símbolos e abreviaturas normalizados para que o debuxo sexa máis doado de interpretar. Cada plano debe levar unha lenda de símbolos. Os máis habituais son: 

Símbolo Significado
Flecha de compás Indica a orientación do edificio nos planos. Sinala o norte.
 Escaleira Liñas paralelas ou en zigzag que mostran o corpo da escaleira e a dirección da subida ou baixada. Os rectángulos paralelos son os chanzos.
  Portas Liña recta co arco de apertura, indicando cara onde abre a porta vista en planta.
 Xanelas Normalmente tres liñas sobre o muro, con forma de diamante ou número que identifica o tipo de xanela.
Dobre liña continua para muros exteriores. Liña simple para interiores ou particións. As liñas grosas indican estrutura, as delgadas, mobles empotrados. As liñas rectas cunha marca nos extreos e un número central son liñas de dimensión. O número é a distancia ou medida real.
Sanitarios e electrodomésticos Íconas a escala que representan lavabos, duchas, bañeiras, inodoros, lavadoras, etc. 
Mobles Liñas finas e esquemáticas que representan mesas, cadeiras, camas ou armarios, colocadas segundo a escala.
Liñas punteadas Indican elementos que se sitúan sobre a sección cortada (ex: mobles altos, vigas, elementos suspendidos).
Programa Usos principais
SketchUp Moi usado en arquitectura e educación. Intuitivo, con versións gratuítas.
AutoCAD 3D Incorpora modelado volumétrico, pero máis complexo que en 2D.
Fusion 360 (Autodesk) Para deseño industrial e enxeñaría. Inclúe simulación e mecanizado.
Blender Software libre moi potente, usado para animación, escultura e arquitectura.
TinkerCAD Plataforma web, ideal para aprendizaxe básica de deseño 3D. Moi usada en secundaria.
Revit Enfocado a arquitectura e modelado BIM. Moi utilizado no ámbito profesional.

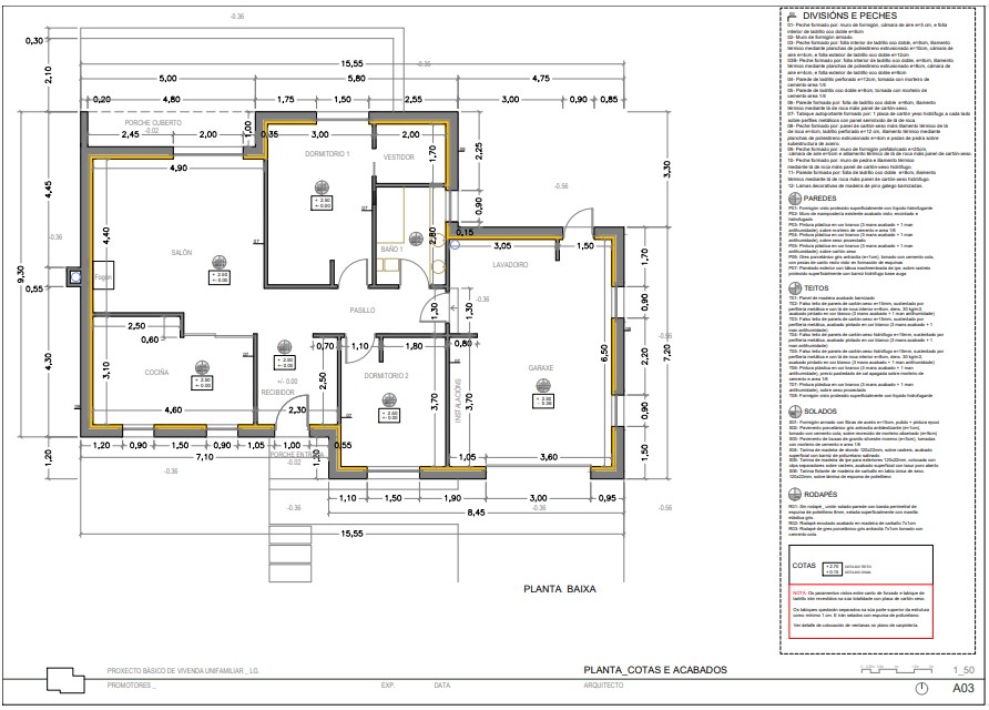
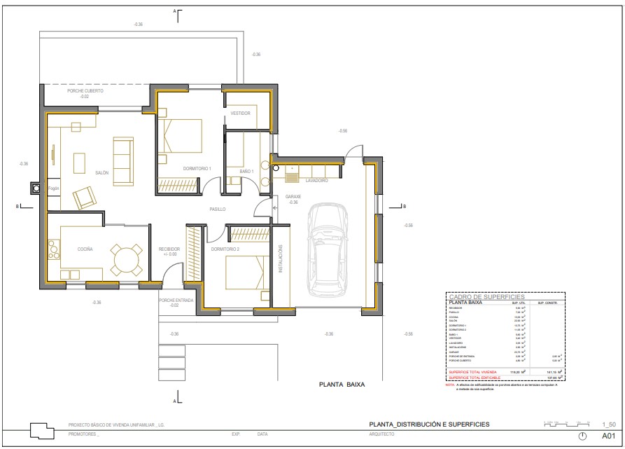
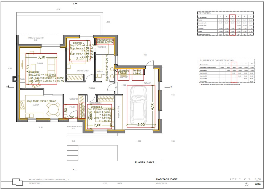
Planos de vivenda real

Aquí podes os planos dunha vivenda pequena feita con paneis prefabricados de formigón armado e trasdosado, no polo interior con paneis de cartón xeso e illamento térmico (en cor marelo).

Planta_Distribución e superficies
Ana Moreiras e Tatono Gómez. Planta_Distribución e superficies (CC BY-SA)
Alzados, seccións e cuberta
Ana Moreiras e Tatono Gómez. Alzados, seccións e cuberta (CC BY-SA)
Planta_Cotas e acabados
Ana Moreiras e Tatono Gómez. Planta_Cotas e acabados (CC BY-SA)
Habitabilidade
Ana Moreiras e Tatono Gómez. Habitabilidade (CC BY-SA)

Deseñamos e visualizamos a nosa vivenda

Existen softwares gratuítos e moi intuitivos para xerar simulacións de vivendas. Estes programas permiten deseñar, amoblar e visualizar vivendas en 2D e 3D, con navegación virtual e renderizado realista. Propoñémosche os seguintes: 

  1. Homestyler. En liña, intuitivo en canto a deseño dos espazos.
  2. Floor Plan
  3. FloorplannerCreator. Sinxelo, ideal para planos rápidos. En liña
  4. Roomle
  5. HomeByMe. En liña, con catálogo de mobles realista.
  6. Planner 5D. Para web, android e iOS. Con realidade aumentada.

Todos funcionan de xeito semellante: debes rexistrarte e accedes a un escritorio onde podes ir configurando a túa casa habitación a habitación, engadindo os elementos a partir das librerías que che ofrece o programa. Sempre podes modificar o tamaño da estrutura, xanelas e portas, pero os mobles veñen prediseñados. A maioría, permiten que deseñes en 2D e visualices despois en 3D.

Escritorio Homebyme
Ana Moreiras. Escritorio Homebyme (CC BY-SA)
Simulación 3D en Homebyme
Ana Moreiras. Simulación 3D en Homebyme (CC BY-SA)

Tarefa planos 2D

Partindo do voso bosquexo, coas medidas que terá a construción final, crearedes un plano que inclúa as portas, xanelas, materiais de acabado final e mobiliario. Cando o rematedes gravade un percorrido virtual pola construción a través do renderizado en 3D. Algún dos softwares permítevos facer un vídeo; se non é posible, gravade pantalla sobre o renderizado.

Rúbrica planos

Rúbrica planos CAD
 ExcelenteNotableBenInsuficienteNon presentado
Composición e medidasConstan as MEDIDAS DE CADA elemento do plano. (3)Constan ALGUNHAS das medidas de cada elemento do plano. (2)Constan POUCAS medidas de cada elemento do plano ou as medidas son POUCO REALISTAS. (1.25)Non hai medidas ou estas non son realistas. (1)Non presentado. (0)
Elementos envolventeHai xanelas, portas, divisións internas, escaleiras. (3)Falta ALGÚN dos seguintes elementos: xanelas, portas, divisións internas, escaleiras. (2)Faltan VARIOS dos seguintes elementos: xanelas, portas, divisións internas, escaleiras. (1.25)Non hai divisións internas nin portas e xanelas. (1)Non presentado. (0)
MobiliarioEstán TODOS os elementos precisos para a función que vai ter o edificio. (4)Están A MAIORÍA dos elementos precisos para a función que vai ter o edificio. (3)Están VARIOS dos elementos precisos para a función que vai ter o edificio. (2.5)Están só ALGÚNS dos elementos precisos para a función que vai ter o edificio. (1)Non presentado. (0)
  • Actividade
  • Nome
  • Data
  • Puntuación
  • Notas
  • Reiniciar
  • Imprimir
  • Aplicar
  • Nova xanela

Feito con eXeLearning (Nova xanela)